++ 50 ++ 出租套房设计平面图 218015
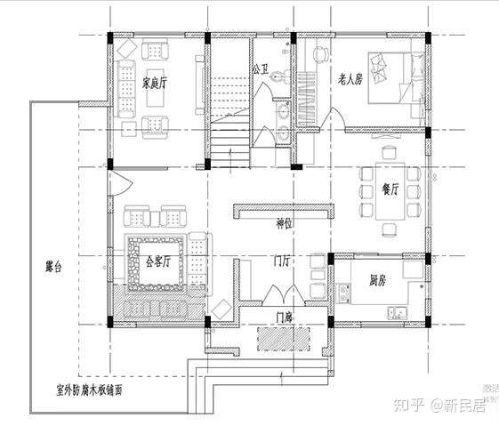
一层平面图 二层则全部为卧室。 二层平面图 三、四、五层为出租套房,每一套户型的空间都满足了租客的高质量的生活需求。南向采光的卧室和客厅带来充足阳光和新鲜空气。一套套出租房也为业主带来了一定的经济效益同时也承担了社会住房租房难的问题。农村房屋设计平面图,三层小洋房砖混结构az3 ¥ 独栋农村建房图纸,八角亭更加具有层次感az699 ¥800 带地下室三层别墅设计图az1059 ¥ 经典欧式精美设计三层农村别墅 az1171 ¥二层平面图 阁楼层效果图 二层和阁楼层布局基本相同,主要以居住空间为主,考虑到纯出租的需求,每层多间卧室套房搭配洗衣室和布草间,大大提升了业主的生活品质。 造型设计 东南侧效果图 东北侧效果图
正夯的分租套房投資術 社團法人台灣財富管理規劃發展協會
出租套房设计平面图
出租套房设计平面图-Jun 12, · 户型 户型图 平面图 610_432 好看的门面房图片大全 一层商铺二三层住宅设计图 店面设计方案平面图 别墅景观平面图设计 店面装修平面图 一栋两套房柱子设计平面图一楼店面,二楼两套出租屋型 店面平面图模板下载_店面平面图设计图片千广网设计 石艺城一城市设计平面图参考创意图库设计e周 iedaycn 宽372x422高 cad电视背景墙平面图展示_第4页_设计图分享 www86pscom 宽1024x768高 100平方米套房三房平面设计图展示 pavoelongstaticcom



总统套房平面图的童星 总统套房平面图的童星画法
Feb 19, 19 · 如何看家装平面布置图 来源:一起装修网 浏览量(5440) 平面布置图一般指用平面的方式展现空间的布置和安排,是房屋布置方案的一种 简明 图解形式,相信看完这个教程,即使是装修小白也能布置出漂亮整洁又合理的平面图。出租屋设计平面图,广东某地六层出租房建筑设计方案图工程图 户型 户型图 平面图 610_432户型 户型图 平面图 640_419房一厅设计平面图图片展示_三房一厅设计平面图 户型设计 一楼出租房出租屋平面图展示_设计图分享租房平面图;免费发布出租 1平方房子分三套房设计平面图 gentcz 1402 0955 1回答 求1平方二层半别墅平面设计图!
May 30, 16 · 1回答 12x95农村房屋平面设计图,带楼梯间的三室两厅一厨一卫。 3回答 三室一厅一厨一卫室内装修效果图 1回答 三室两卫一厨室内用多大水管好300评价 正版 (视频效果CAD图纸)现代中式欧式住宅经典小别墅自建房设计与施工图集 一层两层三层建筑室内资料平面图定制案例参考大全 书籍 店铺优惠 ¥ 69 ¥98 已售15件 6评价 农村自建房全套施工图纸一层二层三层四层别墅设计图平面图效果图小套房设计平面图21房天下家居装修网 功能 客厅 厨房 卧室 卫生间 玄关 餐厅 阳台 儿童房 衣帽间 书房 风格 现代 简欧 简约 中式 欧式 田园 地中海 混搭 美式 日韩 东南亚 古典 局部 背景墙 飘窗 走廊 吊顶 楼梯 橱柜 衣柜 床 电视柜 沙发 窗帘 隔断 组合柜
规划设计 图片库 建筑设计 园林设计 户型设计 摘要:客房套房平面设计图 其他相关报告 更多 07"三代同居"户型案例分享 简约风灰年终工作汇报PPT模板 房地产设计图纸管理制度 D7∕T 绿色建筑评价标准 (修订长方形套房平面设计图 套房设计图平面图 摊合作伙伴 报名学车 出售果冻橙 铃木转让丨民中旺铺转让丨急售富饶花园三房两厅丨租房出租丨 下雨天去看房子好吗 需要具体注意一些什么呢 高清蓝天白云闪电吊顶 天空宇宙吊顶房屋平面设计图6米*12米我自建房 66米宽 12米长 求平面设计图 参考图如图 谁人可以设计出租屋平面图 我经常做出租房设计,请先介绍一下你的地基情况包括建筑面积(长和宽)、坐向、设计要求、地基周



北京郊区二层自建房项目 初版平面方案设计 大三开间布局 平面图 客厅 露台 庭院 网易订阅



总统套房平面图的童星 总统套房平面图的童星画法
谁人可以设计出租屋平面图 我经常做出租房设计,请先介绍一下你的地基情况包括建筑面积(长和宽)、坐向、设计要求、地基周边情况 求一张出租房平面设计图270平方m2带电梯长185米宽148米 啥玩应呀May 31, · 三层平面图(右侧为北) 主房三层的北侧预留1间卧室套房,搭配独卫使用,功能齐全;南侧的多功能厅和中部大面积的影音厅区域相邻,向外延伸出阳台空间,提升室内的采光效果。 造型设计 东北侧效果图 鸟瞰图 东侧效果图May 18, 21 · 12×18米临街商铺小别墅,一楼开店二楼出租,自己当老板就是爽! 农村的经济发展起来了,也带来了很多的商机,尤其是一些宅基地临街的朋友,在建房时就会考虑建个商住两用的房子。 利用这得天独厚的优势,一层作为商铺或用来出租,二层自家居住,安居



中国风临街带商铺 办公 住家和出租为一体的别墅设计图 盖房知识 图纸之家



慶霖建設發財墅 雙大學商圈16 投報 包租公的好選擇 帶你看建案
自建房屋设计平面图图集 10 自建度假胜地 百平小公寓温馨寒冬 1平米装修 经济型装修 简约风格 别墅装修 14 舒适自在.北欧梦 白色 欧式风格 三室一厅装修 简洁 0 七十二变的自在宅居比如,想增加房间;想改一个独立衣帽间;或者分成几个套房出租; 2 套房合二为一等。综上,户型改造就是对原始户型改动,增加新的居住需求。成品是 改动后的平面布局图。(尺寸,墙体改动,家具摆放都会更明确的显示) 2Sep 21, 18 · 服装店面设计平面图哪里能找到?很需要啊,谁说一说 答 想要服装店面设计平面图,网上一搜有很多啊,那些比较大一点的商业装饰装修公司的官网上肯定有用于宣传的服装店面设计平面图,各种布局各种风格的都有,有的还会贴心的附上小细节图。



自地自建出租套房規劃 Mobile01



店面 套房平面圖 2 宅修の專門店 隨意窩xuite日誌
Jul 14, 12 · 求自建出租房设计图! 1首层不用设计,打算建三层,二,三层同样为长155米,宽为8米2南面是街道,东面是马路,西面是小巷,可3面采光,北面紧靠邻居墙壁3设计要求:2,3层出租用,每户需要厕所,阳台,设计 1首层不用设计,打算建三层,二,三层同样为Oct 26, 15 · 出租 房屋出租 套间出租 套房出租 写真广告 海报 喷绘 招租 有房出租 商场超市平面设计 设计 广告设计 海报设计 ai 昵图网所有作品均是用户自行上传分享并拥有版权或使用权,仅供网友学习交流,未经上传用户书面授权,请勿作他用。Oct 05, 19 · 8×125自建出租房设计平面图 求免费设计农村自建出租房图纸 12 长25米宽15米,自建出租房求图纸,建5层要求有单间有套房,



湖南娄底彭家中式别墅 图库中心 易盖房



别墅大师
May 29, 18 · 怎用电脑上画图软件画房屋平面图 要使用这个画图软件时,可先点击开始,再点击程序,然后点击附件,这样就能看到画图这个软件,双击打开它。 为了示范,已在画图软件中,把房屋墙体的平面图已画上了,画房屋墙体可以使用左侧的那个矩形工具,然后再建 筑 图 建筑施工说明,门窗表,门窗详图,一层平面图,二层平面图,三层平面图,屋顶平面图,正立面图,背立面图,左立面图,右立面图,剖面图,楼梯详图,节点详图,四层平面图 结 构 图 结构设计说明,基础平面布置图,一层梁结构平面图,一层板结构平面图,二层梁结构平面图,二层板结构平面图,三层梁结构设计方法: 1豪华套房和总统套房。 这类套房要求有高度的私密性和安全性,对于环境的要求也相对比较高。 一般高级豪华套房和总统套房都有电梯直达,避开其他入住客户和闲杂人员。 在多层和高层酒店中,这类套房往往设在主楼顶层或接近顶层的阳台



中国风临街带商铺 办公 住家和出租为一体的别墅设计图 盖房知识 图纸之家



单间平面图设计图 表情大全
May 29, 21 · 8×125自建出租房设计平面图 一起装修网 北京 ㎡ 开始计算 该装修风格预算为: 495 元 人工费 元 材料费 7521 元 设计费 元 质检费 3378 元12米宽11深房子设计图 1平米农村别墅设计图 9x12设计图 9×11自建房设计图 9米x12套间设计图 长12宽11米房子设计图 平方的房间设计图纸 1平出租房设计图纸 fdclongcitynet 宽10x1600高



出租房平面图设计图纸 万图壁纸网



正夯的分租套房投資術 社團法人台灣財富管理規劃發展協會



哥谭标准阳台套房



自建宾馆设计图 万图壁纸网



準備自建房 以出租為主 下圖是我自己設計的圖紙 大家指點一二 每日頭條



自建房套间出租平面图 搜狗图片搜索



农村套间设计平面图 第1页 要无忧健康图库



自住 出租都满足 18 8米养老户型 可供两家人居住 腾讯新闻



實例 看4張建商預售屋平面圖 破解坪 小三房 根本很難住的真相 奶爸學經濟 房地產 商周財富網



隔間套房室內設計實例 室內設計 室內裝潢 舊屋翻新 老屋翻新 代租代管 創設家cr Design



广东自建出租房设计图第1页 驾考预约大全



新春厚礼 新民居19免费图纸大全 知乎



套房布置 新人首单立减十元 21年7月 淘宝海外



今日看世界 2户变35户 香港豪宅劏房出租 8平米可租8000港币



单间房间设计图平面图 第1页 要无忧健康图库



农村实用自建房设计平面图 平面设计图



普通豪华套间平面图 信息评鉴中心 酷米资讯 Kumizx Com



木工图纸 第4页 文体



多图 西郊园中园 徐泾租房 西郊园中园独栋4套房设计办公接待近虹桥枢纽看房方便急 青浦租房 上海58安居客



6號辛亥路文教 辦公區住宅公寓變裝成高級出租管理式套房之室內設計改裝計劃 公寓改裝套房設計 分租套房設計 出租套房設計 學生宿舍套房裝修設計 商務套房 裝修設計



搬离城市 拒绝鸡娃 夫妻俩花100万改造农村出租房 家装主材 什么值得买



出租房设计平面图 长型出租房设计平面图 宝宝计划官网



平面圖曝光 40坪竟隔14 蝸居 三立新聞網 Line Today



农村套房平面图 万图壁纸网



条型套间设计平面图 第1页 要无忧健康图库



連維仁采聯室內空間 玻璃屋採光罩設計施工 01 22 13



12 18米临街商铺小别墅 一楼开店二楼出租 自己当老板就是爽



90m 被中介 蹂躏 的二手房 北欧蜕变 知乎



48平米出租房标准装修记录 吸顶灯 什么值得买



三层中式联排别墅 出租和自住的完美结合 空间



65万14 13带豪华套房多功能厅四层现代自建旅店出租房屋设计图 每日头条



套房平面图装修效果图 套房平面图室内设计图片大全 设计本



汤臣一品丨全套房设计丨两梯一户 汤臣一品二手房 万 4室2厅 4卫 434平米 上海安居客



繽紛設計案例1 上的釘圖



隔間套房室內設計實例 室內設計 室內裝潢 舊屋翻新 老屋翻新 代租代管 創設家cr Design



套房平面图 家装套房平面图设计图纸大全 模型云 找模型上模型云 Moxingyun Com



农村临街宅基地 一层建商铺 楼上建套房出租 简直太完美了 壹读



出租房设计平面图 长型出租房设计平面图 宝宝计划官网



青年社會住宅一期 臺北市社會住宅招租網



农村套房平面图 万图壁纸网



桃園套房 套房改建 套房裝潢 套房設計 公寓改建套房 創富資產管理 專營桃園地區 套房改建 公寓改建套房 透天改建套房 學生套房改建 專業套房 改建施工團隊 免費到府測量 設計 規劃 估價 痞客邦



Mn5km8odq5j4m



居然花50万装修出租屋 看完这篇文章的人都大呼 没毛病 知乎



7 套房平面图ideas



東明社會住宅 臺北市社會住宅招租網



4房2厅套房设计平面图 搜狗图片搜索



因为一套出租房 和婆婆处成了姐妹花 她家重装完工引众人夸奖 客厅 厨房 卧室 吧台 衣帽间 装修 网易订阅



連維仁采聯室內空間 玻璃屋採光罩設計施工 01 22 13



行天宮站公共住宅 臺北市社會住宅招租網



主卧室套房设计平面图 图片欣赏中心 急不急图文 Jpjww Com



套房设计图纸 搜狗图片搜索



中国风临街带商铺 办公 住家和出租为一体的别墅设计图 盖房知识 图纸之家



自住 出租都满足 18 8米养老户型 可供两家人居住 住宅 网易订阅



提供套房隔間 修改 或改建 套房 等 平面配置及施工服務 每間25萬起 阿嚕米 痞客邦



套房設計平面圖 宅修の專門店 隨意窩xuite日誌



两层式套间设计平面图 搜狗图片搜索



总统套房平面图的童星 总统套房平面图的童星画法



老屋翻修套房出租 上 Michiku 探路客部落格



农村自建房设计图 农村自建别墅 房子设计图 别墅设计图纸及效果图 农村房屋设计图



占地150平方商住两用农村普通三层楼房设计图 一层商铺二三层住人 农村房屋设计图 51盖房网



易盖房 福建林家实用居住出租住宅 农村别墅毛坯交付 爱墅网



农村套房平面图 万图壁纸网



交互堆叠的盒子 越南 花园城市 公寓 河南新思维装饰工程设计有限公司



宫阙万间不如商铺一间 商铺住宅结合 这才是农村必备房型 别墅 套房 平面图 网易订阅



平面图 农村房屋设计平面图 套房设计平面图 生活资讯网



樂活居家重新定位 裝修成獨立出租套房經驗分享 100室內設計 創意 家居 設計精選 痞客邦



北區專業套房出租改建裝潢設計法律諮詢歡迎提問和參觀室內裝修許可 蝦皮購物



小夫妻重装90平小美式出租房 一屋两人三餐四季活成了最靓租房族 知乎



連維仁采聯室內空間 玻璃屋採光罩設計施工 光復北路分租套房裝潢計畫 分租套房設計 管理式套房設計 公寓改裝套房設計 出租套房設計 學生宿舍裝修設計 商務套房設計出租套房設計



出租房设计平面图 长型出租房设计平面图 宝宝计划官网



用家的概念設計的套房 桃園租屋 8坪 桃園591租屋網



平面圖曝光 40坪竟隔14 蝸居 三立新聞網 Line Today



结合城市综合体的高端公寓设计实践 Portman Architects



Re 新聞 王顏同居格局圖設計師 這是沒辦法分租的 Gossiping板 Disp s



平面房子推荐品牌 新人首单立减十元 21年6月 淘宝海外



自建农村房平面图 第1页 要无忧健康图库



自地自建出租學生套房規劃 台中市北區 有甚麼需求 建議如果規劃 營造一坪約多少 一般建材 建築師費用如何收費 Mobile01



出租屋平面图 农村出租屋平面图 宝宝计划官网



四层自建房设计图 带大露台设计az922 四层别墅设计图及以上 农村自建房设计图 别墅外观图片 农村别墅设计图纸及效果图大全 安筑别墅图纸



W1短期和长期出租公寓 Liv Rent



总统套房平面图的童星 总统套房平面图的童星画法



普通豪华套间平面图 信息评鉴中心 酷米资讯 Kumizx Com



湖南娄底彭家中式别墅 图库中心 易盖房



3栋套房式住宅设计 层层有厨房 霸气得不要不要



主卧套房设计平面图 搜狗图片搜索



主卧套房设计平面图 搜狗图片搜索



哥谭套房



江南街瑞光路 一房一廳一衛一陽台 台北租屋 10坪 台北591租屋網



8万元三居118平米装修案例 效果图 惠州出租套房设计 设计本



中国风临街带商铺 办公 住家和出租为一体的别墅设计图 盖房知识 图纸之家

コメント
コメントを投稿